ROOMS

Screenshot 2025-09-03 at 20-16-52 w72_105a

写真は準備が出来次第、順次アップさせていただきます。

ロフト上部から

洋間

20251027_101717

和室

20251028_111843

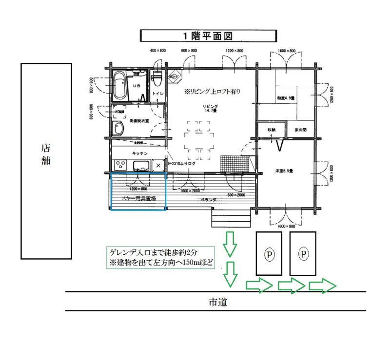
 スキー用具置場(乾燥室)

20251028_111928
20251028_111910
20251027_101934
20251104_142623

ロフトの窓からの眺め(東方向を望む)

上部へスクロール